1 of 20
For Sale
£174,000 (Price)
Full Market Value from: £435,000

Hawkins Place, 1, Hawkins Place, Saffron Walden, CB10 2GW

1, Hawkins Place, Hawkins Place, Saffron Walden, CB10 2GW

Shared Ownership Semi-detached house

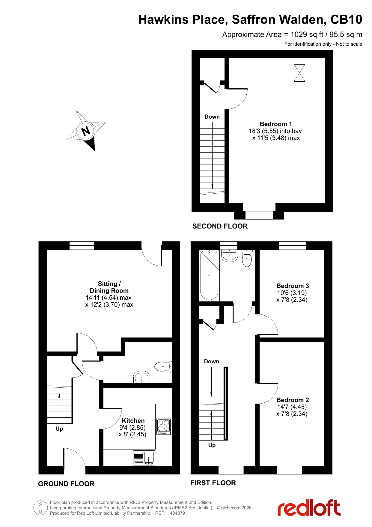
Bedrooms: 3
Furnished: Unfurnished
Reception rooms: 1
New Build: Yes
Bathrooms: 1
Area: 95.5 m2
Council Tax Band: D
Lease Years: 117
Description

Modern Three Bedroom Semi-Detached Town House with Landscaped Garden & EV Charging - Shared Ownership Resale

A beautifully presented three-bedroom semi-detached town house available through the Shared Ownership scheme, set on a sought-after modern development in Saffron Walden. Built in 2018 and finished to a high standard throughout, this home offers stylish, practical living space ideal for families and professionals alike.

The ground floor includes a welcoming living/dining room, a well-equipped kitchen with integrated appliances including a washing machine and dishwasher, and the convenience of a downstairs WC. Upstairs, there are three good-sized bedrooms and a modern family bathroom, providing flexible accommodation for family life, guests or home working.

Externally, the property truly stands out, boasting a professionally landscaped private garden with a shed and side access, along with a private driveway for two cars complete with an electric vehicle charger. With approximately 95 sq m of internal space, gas central heating via a combi boiler, and an EPC rating of B, this is a comfortable and energy-efficient home. The property is offered unfurnished and held on a long lease.

Key Features

  • Three-bedroom semi-detached town house
  • Shared Ownership - 40% share available
  • Integrated kitchen appliances (washing machine & dishwasher)
  • Spacious living/dining room
  • Downstairs WC/cloakroom
  • Professionally landscaped private garden with shed
  • Driveway parking for two cars with EV charger
  • Approx. 95 sq m of living space
  • EPC Rating B & gas combi boiler

 

Key Information

  • Tenure: Shared Ownership
  • Available Shares from: 40%
  • Full Market Value: £435,000
  • Share Value (initial purchase) from: £174,000
  • Rent (on unsold equity): £657.67 per month
  • Service Charge: £12.83 per month
  • Lease Length: 117 years remaining
  • Council Tax Band: D
  • EPC Rating: B

 

Location

Located at Hawkins Place, Saffron Walden (CB10 2GW), the home is within walking distance of the historic town centre and surrounded by open countryside. Saffron Walden is a charming market town known for its impressive parish church, tree-lined High Street, independent shops and strong community feel. Residents benefit from a wide range of schools, leisure and sporting facilities, plus cultural venues including Saffron Screen and Saffron Hall. Market days take place on Tuesdays and Saturdays.

For commuters, the M11 (J9 & J10) provides road access to London and Cambridge, while Audley End Station, around 3 miles away, offers direct rail services to London Liverpool Street.

Eligibility for Shared Ownership

In order to be eligible to purchase a Shared Ownership house or apartment, there are several general criteria you must meet:

  • You must be at least 18 years’ old with a clean credit history
  • Your annual household income must be less than £90,000 in London, or £80,000 outside of London
  • You’re a first-time buyer, a previous homeowner that cannot afford to buy one now, or an existing shared homeowner
  • You must not be in mortgage or rent arrears, demonstrate a good credit history and be in a position to afford the regular payments

Find out what you can afford

Unsure of how much you can afford to borrow towards the purchase of a home? Use our Affordability Calculator below to receive an assessment* of how much you’re likely to be able to borrow based on your income.

Shared Ownership
*The affordability calculators give you an indication of affordability only. Your initial affordability assessment will need to be completed by an Mortgage Broker.
Register your interest in Hawkins Place, 1, Hawkins Place, Saffron Walden, CB10 2GW

This site uses cookies, please review our privacy policy before continuing.