- Home
- Property Search
- Tabard Street
- Tabard Street, 217a, Tabard Street, London, SE1 4UR
Tabard Street, 217a, Tabard Street, London, SE1 4UR
217a, Tabard Street, Tabard Street, London, SE1 4UR
Private Sale Flat
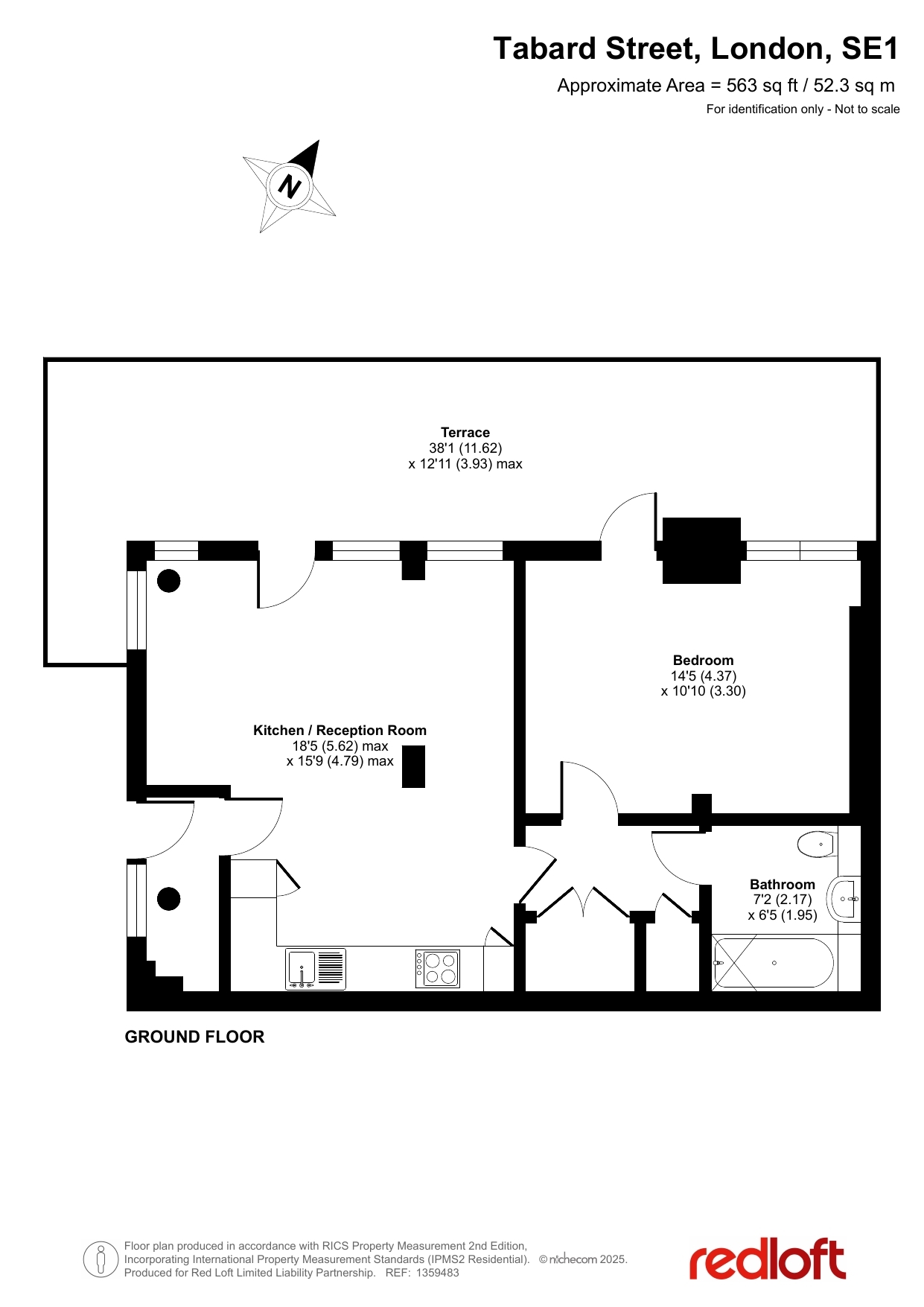
This beautifully presented one-bedroom, one-bathroom apartment is set on the ground floor of a modern development and offers a stylish combination of comfort, functionality and outside space.
The property features a spacious open-plan living and dining area, designed with large windows and doors that open directly onto a generous private terrace, perfect for entertaining or enjoying the outdoors.
The contemporary fitted kitchen provides excellent storage and is fully equipped with integrated appliances including a hob, oven, microwave, drinks fridge and a freestanding washer.
The modern bathroom has been finished to a high standard with sleek tiling, integrated storage, a wall-mounted vanity and a chrome towel rail.
- Ground floor apartment
- Large private terrace
- Spacious open-plan living space
- Modern fitted kitchen with integrated appliances
- One double bedroom
- Stylish bathroom with storage and chrome towel rail
Location
Situated on Tabard Street, SE1, this property enjoys a highly convenient location close to the vibrant amenities of Borough and London Bridge. Residents benefit from an excellent selection of cafés, restaurants, pubs and shops, as well as green space at Tabard Gardens just moments away. Borough Underground Station (Northern Line) and London Bridge Station (Jubilee, Northern, National Rail and Thameslink) are both within easy walking distance, providing superb transport connections across London. The South Bank, Bermondsey Street and Borough Market are also nearby, offering an abundance of cultural, dining and leisure options right on your doorstep.
Call today to arrange your viewing and find out more!


