- Home
- Property Search
- Tabard Street
- Tabard Street, 5, Tabard Street, London, SE1 4UR
Tabard Street, 5, Tabard Street, London, SE1 4UR
5, Tabard Street, Tabard Street, London, SE1 4UR
Private Sale Flat
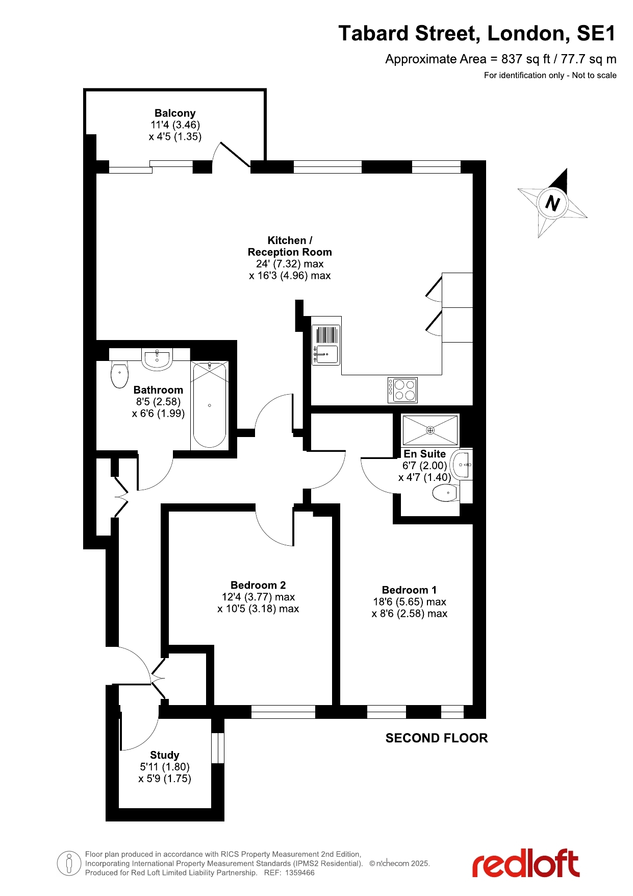
Located on the third floor of a contemporary development, this stylish two-bedroom, two-bathroom apartment combines modern design, comfort and practicality.
The property boasts a bright open-plan living and dining area with wooden flooring and excellent natural light, opening directly onto a private balcony - perfect for morning coffee or evening relaxation.
The sleek fitted kitchen provides excellent storage and includes integrated appliances such as a gas hob, oven, and microwave.
Alongside two generous double bedrooms, the apartment also features a separate study room at the rear, offering an ideal space for home working or quiet reading. The principal bedroom benefits from an en-suite shower room, while both bathrooms are finished to a high standard with modern tiling, storage solutions, and chrome towel rails.
This home is offered part-furnished with the furniture shown, or can be removed at buyers request.
- Third-floor
- One private balcony
- Additional study room
- Fully fitted kitchen with integrated appliances
- Offered with furniture as shown
- Excellent storage throughout
- Spacious open-plan living space
- Two modern bathrooms
Location
Situated on Tabard Street, SE1, this apartment enjoys close proximity to the excellent amenities of Borough and London Bridge. A wide variety of cafés, restaurants, pubs and shops are nearby, along with green space at Tabard Gardens.
Transport links are superb, with Borough Underground Station (Northern Line) and London Bridge Station (Jubilee, Northern, National Rail and Thameslink) both within walking distance. The South Bank, Bermondsey Street and Borough Market are also close by, offering a vibrant mix of cultural, dining and leisure options.
This apartment is perfectly suited to professionals, couples, or small families seeking stylish city living with the added benefit of a dedicated study space.
Call today to arrange your viewing and secure this fantastic apartment.


